Two Tiny Houses United: A 600-Square-Foot Sunlit Haven for a Family of Four
The modern tiny home movement has evolved far beyond minimalist living—it’s now a stage for creative design, family connection, and architectural innovation. These compact spaces challenge the idea that small means limited, instead offering opportunities where functionality and beauty merge seamlessly. Among these designs, the Ohana Tiny Home, created by VIVA Collectiv and architect Brian Crabb, stands as a remarkable example. Spanning nearly 600 square feet, this residence combines two 174-square-foot trailers with a 240-square-foot glass-roofed sunroom, forming a “mega” tiny home built for a family of four—currently listed for $100,000. Inspired by the Hawaiian word ohana, meaning “family,” it embodies warmth, flexibility, and togetherness.
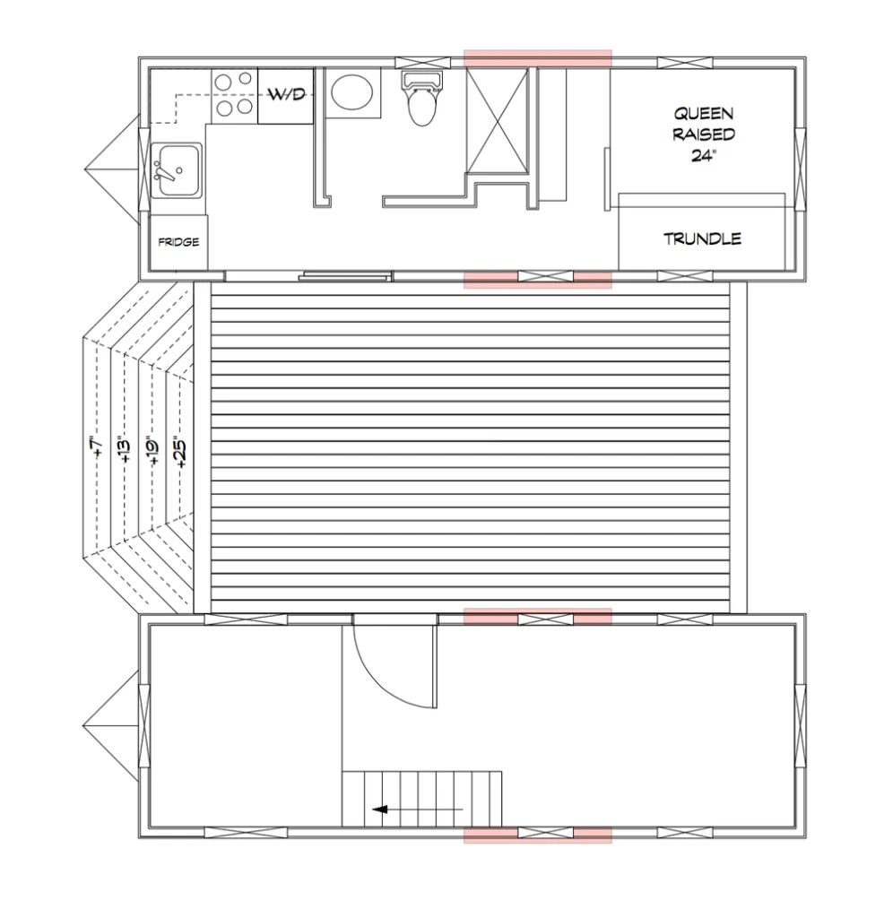
The Ohana’s design is a masterclass in smart space planning. Its two trailers are connected by a bright, glass-covered sunroom that fills the interior with natural light. One unit holds a fully equipped kitchen—complete with a refrigerator, small stove, washer/dryer, and generous counter space—plus a cozy master bedroom. The other includes a living room and two stacked bedrooms, perfect for children or guests. Even the bathroom, compact yet beautifully tiled, reflects the home’s balance of utility and comfort. At the heart of it all, the sunroom—originally inspired by a Louis Vuitton beach house design and adapted for Portland, Oregon—serves as a vibrant family gathering space that blurs the line between indoors and out.

This home’s adaptability is its greatest strength. Whether nestled in the woods, perched near the ocean, or tucked into a city backyard, its 600-square-foot layout fits a variety of lifestyles. It could be a full-time residence for a family of four, a guest-friendly vacation retreat, or a multi-generational dwelling that balances privacy and connection. The glass sunroom transforms with purpose—hosting meals, board games, or quiet reading—while the dual-trailer design ensures each family member enjoys their own corner of comfort. It’s a home that grows with its occupants, shaped by how they choose to live.

The Ohana also proves that small spaces can thrive year-round. Its insulated trailers and durable glass sunroom handle Portland’s rainy winters with ease, allowing sunlight to naturally warm the space, while in summer, the open layout promotes ventilation and cool air flow. From the scent of spring blooms drifting through the sunroom to autumn’s golden light filtering in, the home maintains a timeless sense of comfort through every season. It’s a place equally suited to cozy movie nights, sunny barbecues, or peaceful mornings with coffee under the glass ceiling.

Beyond its layout, the Ohana invites personalization. The kitchen and living areas can easily accommodate a dining setup or additional seating for $300–$500, while the bedrooms allow for creative storage or built-in furniture. Outfitting the sunroom with lounge chairs or a hammock costs roughly $200–$400, bringing the total customization cost to around $900–$1,500—on top of its $100,000 price tag. These options let families make the home distinctly their own, transforming it into a cozy hub, creative retreat, or guest-ready haven.

The modular design also leaves room for future expansion. With a 12-by-34-foot footprint, the Ohana can be enhanced with an enclosed porch, garden, or deck, depending on its setting. Its feature on Tiny House Nation highlights its enduring appeal, showcasing how small homes can embody big dreams. Whether it’s set in a rural landscape, along a coast, or in an urban backyard, this home is designed for lasting memories, sustained by thoughtful craftsmanship and a deep sense of family connection.


Ultimately, the Ohana Tiny Home redefines what “tiny” can mean. By uniting two compact trailers beneath a sunlit glass roof, it creates a dynamic, livable space where creativity and comfort coexist. More than just a structure, it’s a story—a place where design meets emotion, and where every square foot is infused with the spirit of family, nature, and possibility.
Credits: Country Living
VIVA Collectiv